Real estate sector working on new housing projects in Otaniemi

Plans for the construction of student housing on Miestentie and Otakaari are progressing at different stages. In total, up to 1,000 new apartments are planned for Otaniemi. Depending on the progress of zoning and other plans, it is possible that all projects will be completed during the 2020s.
Map of Otaniemi and locations of new housing project
Locations of construction projects in Otaniemi, Espoo: Miestentie is located along Ring Road 1, next to Keilaniemi. New projects on Otakaari are located near Ossinlampi. The Student Centre will be built in the heart of Otaniemi.

Aalto University Student Union owns 2,600 apartments in the Helsinki metropolitan area, which are home to 3,200 members of the Student Union. The new construction projects would increase the total number of apartments by approximately 1,000 apartments.

The plans have progressed especially on Miestentie in a new residential area in Otaniemi, which is located along Ring Road 1 near Otaniemi and Keilaniemi. More than 200 apartments will be built in the immediate vicinity of the current Miestentie 2B buildings. In addition, about 700 apartments in four different buildings are planned for Otakaari. 

In addition to student housing, AYY is involved in a joint venture of the Student Center, which progressed to the signing of agreements in mid-May. AYY, Foundation for Business Students in Aalto University, Swedish-speaking student nation Teknologföreningen (TF) and Aalto University have agreed to build a student center. You can read more about this project here

Second phase of Miestentie project

A joint student housing complex of AYY and the Foundation for Student Housing in the Helsinki Region (Hoas), which is divided into two sections, is located on Miestentie. These 131 apartments of the first phase were completed in early 2019. In the autumn of 2020, the second-phase plans officially progressed in AYY’s Representative Council to the design phase.

The second-phase plans include a similar joint student housing complex with Hoas. What makes the project unique is that student housing is included in the same property as a fire station of Länsi-Uusimaa Rescue Department (LUP). The design phase has progressed fast and the project has introduced the RTS environmental classification. The ambitious target level of the classification guides the entire project into a sustainable and responsible direction. 
 

Sustainable housing and environmental friendliness as important design criteria 

The Miestentie project has introduced the RTS environmental classification, which guides the entire project on the basis of sustainable development criteria. The target level was set at a four-star rating and this target will most likely be achieved. This has required significant investments in environmental friendliness. 

In practice, this means that the building is designed to be energy efficient and the project invests in environmentally friendly and low-emission materials. The plan is to execute a geothermal system for the project and the utilisation of solar electricity has been considered in the planning. 

Students’ opinions according to their answers to the most recent housing surveys are considered in the Miestentie project and the development of AYY’s properties. The apartments in the future properties will mainly be small studios preferred by the students.  As a specialty in the Miestentie property, apartments will also include storage space for personal property. This has made it possible to improve the cost-effectiveness of the building with less corridor space as there is no need to build a separate basement storage. During the spring, the plans have progressed to more specific kitchen plans and sketches of common facilities and sauna on the top floor. 

Accessible common facilities for residents and a laundry room will be built on the street level. Common facilities and sauna with a great view will be located on the top floor. The next phase is to choose surface materials for kitchens and toilets, for example, and the opinions of students will be asked. 

Illustration of plans on Miestentie

    Ilmasta käsin oleva havainnekuva, jossa keskellä Miestentien kohteen vaiheiden 1 ja 2 rakennukset

    The first-phase apartments on Miestentie were completed in early 2019, pictured right. The second-phase plans include a similar joint student housing complex with Hoas.  

    Tiiliseinäinen arkkitehtipiirros uusista opiskelija-asunnoista

    Illustration of architectural plans on Miestentie, view to the north. Windows on the facades of the buildings are as large as possible so that apartments have as much light as possible. A variety of reddish bricks are used on the facades. 

    Asuinkerrostalo, jonka alakerroksissa sijaitsee paloasema

    Illustration of architectural plans on Miestentie, view towards the fire station. The premises of the fire station are located on two floors and partially overlap with the residential building of Hoas. 

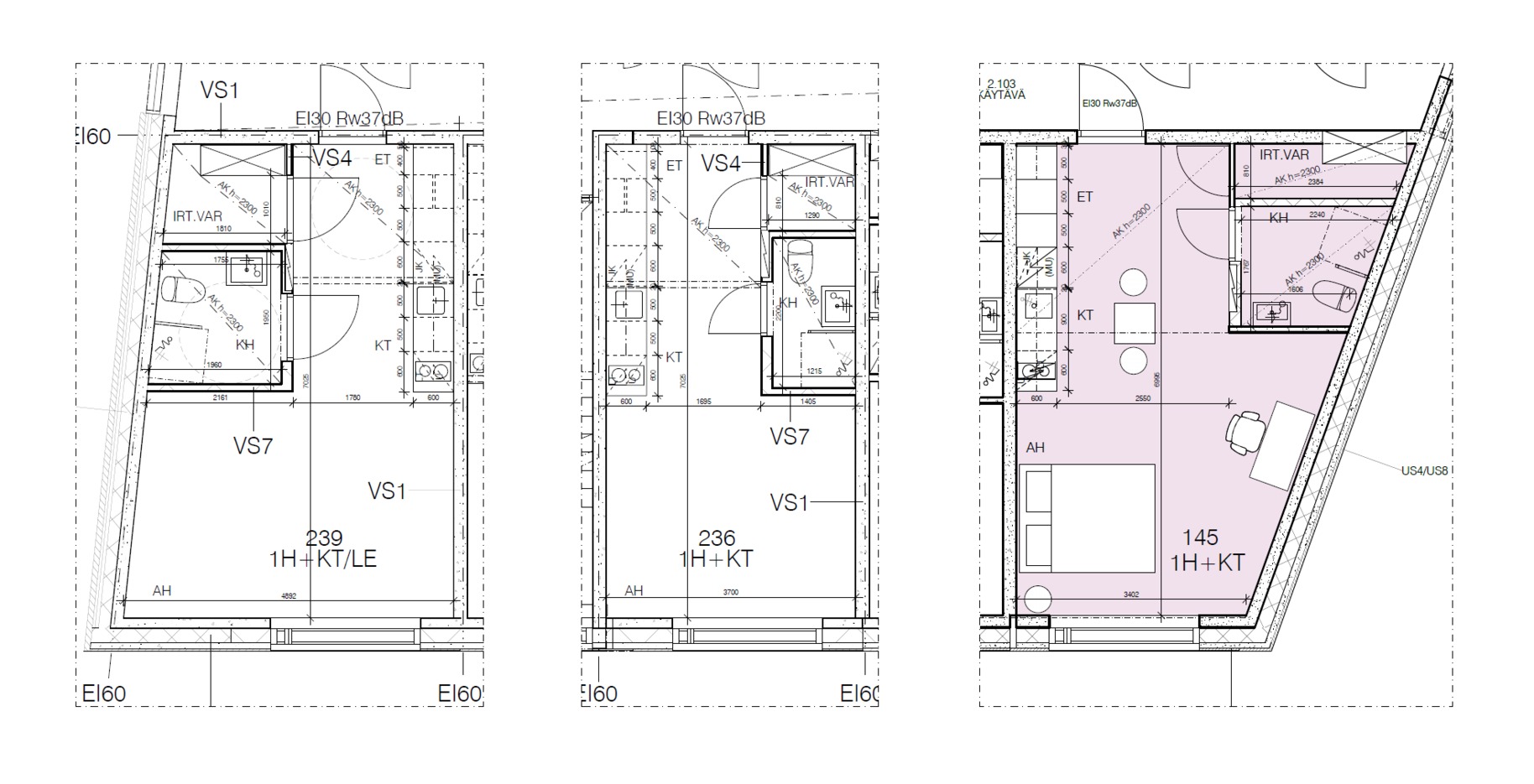
    Kolmen yksiön pohjapiirros, keskellä suorakaide, sivuilla viistot seinät

    Apartments on Miestentie are small studios preferred by the students. Most of the apartments in the middle are studios with 21 m2. Due to the shape of the building, the apartments in the end of the building will have sloping walls. The picture on the right shows a floor plan with furniture.  

    Moderni, punatiilinen kerrostalo

    The plot currently includes student housing of AYY and Hoas, completed in 2019. The joint project has been zoned next to these buildings. 

    Joint project on Miestentie is delayed – clarification of possibility to construct AYY’s student housing earlier

    The rapidly progressed design phase is heading towards the submission of a building permit. The start of construction has been unfortunately delayed, which AYY has not been able to influence, and the project will not proceed as a joint project according to the original schedule. 

    In addition to planning, the possibility of building AYY’s housing complex as an independent project on a faster schedule is being investigated. For now, no technical obstacles have been found for this and if progress as an independent project proves to be possible in terms of land use, the construction could start with a slight delay from the original plan in early 2022. There is still an option to proceed as a joint project, and the parties related to land use are working on a possible timetable. 

    “Construction projects often progress at different paces and delays are not uncommon”, says Petri Kuusisto, Project Manager of AYY’s Real Estate Unit. “We will continue to work on the plans and do our best in the design team to get construction started as soon as possible”. 

    Four student housing properties on Otakaari await the progress of the land use plan and land transactions

    A total of about 700 student apartments in four different buildings are planned for Otakaari, in the area between Dipoli and Servin Maijan tie near Ossinlampi. Between the buildings, there will remain a forest area near the Teknologföreningen building, which protects the habitat and routes of flying squirrels.  

    At the planning phase, mainly studios have been designed for the buildings, as they are most popular among students according to the latest research. Compared to the plans for Miestentie, we are still in the earlier phase, and have not yet decided on the number of apartments, common facilities or more detailed plans for interior design solutions.  

    "Students can still influence the plans for Otakaari!", enthuses Samuli Vehkomäki, AYY’s Board Member responsible for real estate. "In a recently completed resident satisfaction survey, current AYY residents also answered questions about future housing. These results will be used when working on the plans and we are currently considering ways to involved the entire membership”.  

    Most recently, the project has progressed in terms of street planning, i.e., the location of cycle and pedestrian paths and car lanes around the buildings, as well as the location of parking spaces along the street. The project is currently in a zoning phase and land transactions are prepared. At the same time, plans for the maximum number of apartments in the buildings and the possible locations of common and storage facilities will be specified. Zoning and land transactions are expected to progress during the end of 2021. Detailed design could therefore start during 2022 and the first building could be possibly built as early as 2023. 

    Illustration of plans on Otakaari

      Havainnekuva neljästä uudesta rakennuksesta Otakaaren varteen

      Approx. 700 student apartments are planned along Otakaari. The apartments are planned for the inner arch near Ossinlampi, in the area between Dipoli and Servin Maijan tie.  

      Karttapiirros rakennuksista Ossinlammen ja Otakaaren välissä

      A new four-building student housing complex is planned for Otakaari. Between the buildings there is a forest area that secures the habitat and route of flying squirrels. 

      Vasemmalla Otakaaren uusi talo, oikealla Teknologföreningenin rakennus, välissä tie

      Illustration of architectural plans: View from Otakaari, between the Teknologföreningen building and the southernmost new building towards the north. 

      Construction projects are progressing step by step by several teams, and members of the Board and the Finance and Real Estate Committee are also involved in the preparation. In addition to the plans for Otakaari and Miestentie, the improvement of current housing stock on Servinniemi is actively progressing with the planning of renovations of different levels. In addition, there are potential construction sites for smaller new sites in this area. We will keep the members informed of the progress of various locations as soon as we take the next steps. 

      Further information: 

      Samuli Vehkomäki, Board Member, samuli.vehkomaki(a)ayy.fi, +358 40 026 5544

      Zoning information for Miestentie can be found here

      Zoning information for Otakaari can be found here

      • Updated:
      • Published:
      Share
      URL copied!

      Read more news

      kuvassa Joona Lipponen kampuksella, ilme on totinen ja katse kameraan
      Ajankohtaista, Blog, Press release Published:

      What is Trinet, and what will happen to AYY’s internet connection?

      The internet service provider for Aalto University Student Union (AYY) residents is about to change. We have heard that this change has raised concerns within the student community. In this article, Chair of the AYY Board Joona Lipponen responds to questions that concern our members.
      Otakaari 15 art contest
      Ajankohtaista, Press release Published:

      Otakaari 15 art contest now open

      Aalto University Student Union invites Aalto students to participate in an art contest seeking permanent artworks for a new student housing building on Otakaari 15, to be completed this summer. The contest’s inspiring themes include the Otaniemi campus, the Aalto University community, and its vibrant student life. Application period: 9 Feb–31 Mar 2026
      opiskelijoita ihailemassa uutta lippua
      Ajankohtaista, Blog Published:

      The new polyteekkari flag finally raised in Otaniemi

      The 15-year wait of the Otaniemi teekkari community was rewarded in early November, when the community ceremonially introduced the new polyteekkari flag at the 153rd Teekkari Tradition Ball. The previous flag that had united the teekkaris of Otaniemi was the flag of the Student Union of the Helsinki University of Technology, which served the community from 1909 to 2009 and was laid to its well-earned rest with the founding of the Aalto University Student Union. This is how the new flag came into being. 
      Havainnekuva Otakaari 15
      Ajankohtaista, Press release Published:

      The first application round for Otakaari 15 starts in March

      The application round for the new student apartments that are being built in Otakaari 15 starts on 16 March. The property will have 153 modern apartments that have been designed to meet the needs of current students right at the heart of Aalto University’s campus.