Otarannan kerhotila

Otarannan kerhotila on muokattavissa monenlaiseen käyttöön. Tila sijaitsee Otaranta 8 B:n kellarikerroksessa.
Otaranta clubroom

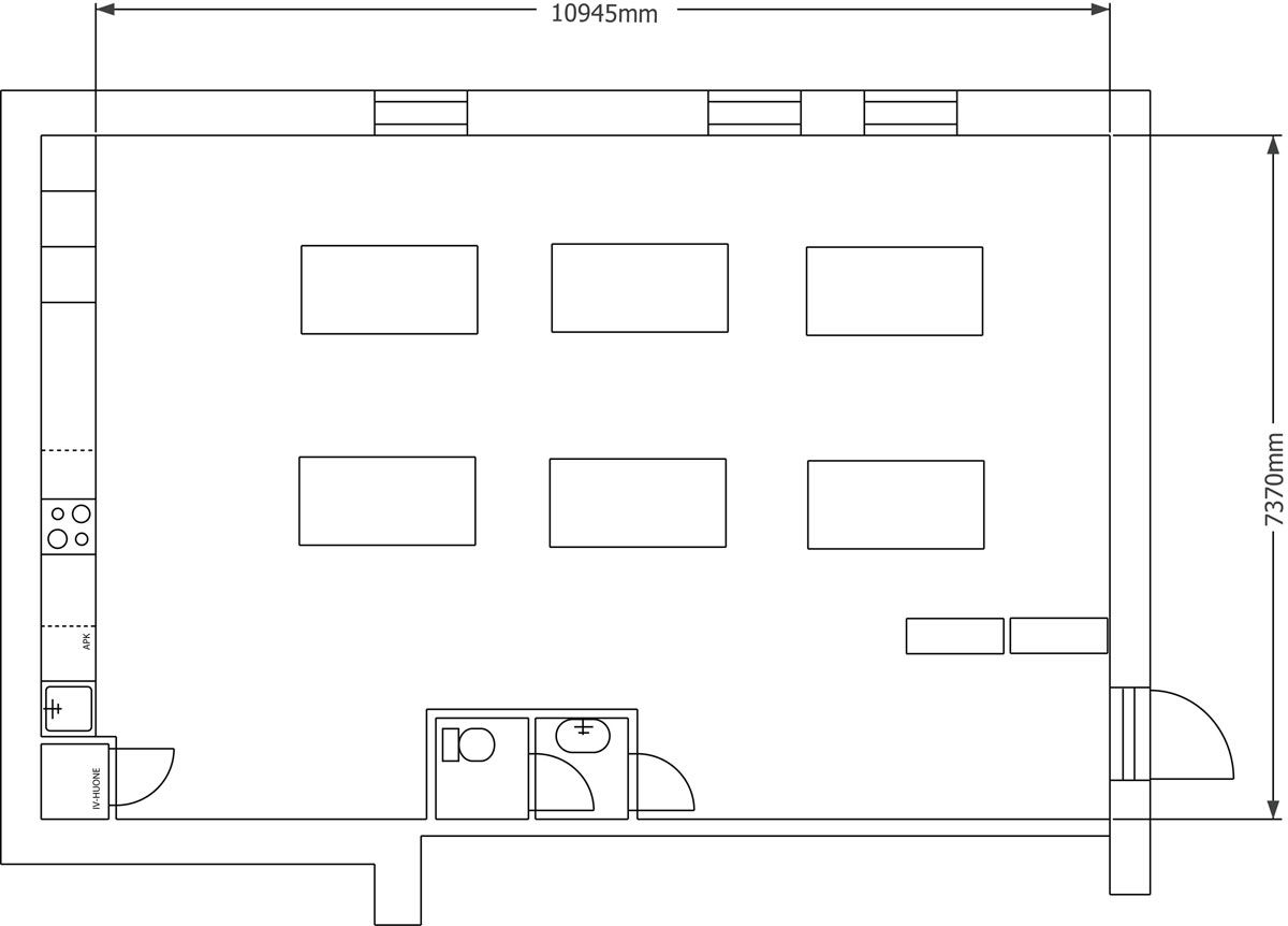
Otarannan kerhotila sijaitsee Otaranta 8 B:n kellarikerroksessa. Tilassa on hyvin varusteltu keittiö ja tila soveltuukin erinomaisesti sitsien sekä esimerkiksi kokousten pitämiseen. Tilaan mahtuu noin 50 henkilöä.

Tila sijaitsee asuintalossa, joten sieltä on ehdottomasti poistuttava käyttöajan loppuun mennessä.

Osoite: Otaranta 8 B
Oleskelutila: 15 pöytää ja 40 tuolia. Lisäksi seinustoilla pehmustettua istumatilaa.
Keittiö: Liesi, uuni, mikroaaltouuni, juomakylmiöt, astianpesukone ja kahvinkeitin.
Astiat: Runsaasti astioita.

Tilaan pääsee kulkukoodilla, joka löytyy Tilasta varauksen tiedoista. Kulkukoodi aktivoituu 15 minuuttia ennen varauksen alkamista. 

Esteettömyys: Tilaan on esteetön kulku pihalta luiskaa pitkin kellarikerrokseen. Kerhotilassa ja sen keittiössä mahtuu liikkumaan apuvälineen kanssa. Tilassa ei ole esteetöntä wc:tä. Pihapiiri on tasainen ja pysäköintitilaa on runsaasti, mutta erillisiä esteettömiä pysäköintipaikkoja ei ole. 

Kuvia

    Otarannan kerhotila2
    Kitchen
    Otarannan kerhotilan hyllykkö
    Pohjakuva

    Avaa kuva uudessa välilehdessä nähdäksesi pohjakuvan kokonaisuudessaan

    Kitchen
    Tilojen hinnasto ja käyttöajat
    • Päivitetty:
    • Julkaistu:
    Jaa
    URL kopioitu