Otakaari 15 -taidekilpailu on avoinna

Aalto-yliopiston ylioppilaskunta kutsuu Aallon opiskelijat osallistumaan taidekilpailuun, jossa etsitään pysyviä taideteoksia kesällä valmistuvaan uuteen opiskelijoiden asuintaloon, Otakaari 15:n uudisrakennukseen. Kilpailun inspiroivana teemana toimii Otaniemen kampus, Aalto-yliopiston yhteisö sekä sen rikas opiskelijakulttuuri. Taidekilpailu on avoinna 9.2.- 31.3.
Otakaari 15 taidekilpailu 2026

Aalto-yliopiston ylioppilaskunta kutsuu Aallon opiskelijat osallistumaan taidekilpailuun, jossa etsitään pysyviä taideteoksia kesällä valmistuvaan uuteen opiskelijoiden asuintaloon, Otakaari 15:n uudisrakennukseen. Taidekilpailun kautta haetaan teoksia, jotka lisäävät rakennuksen viihtyisyyttä ja ovat taiteellisesti sekä visuaalisesti mielenkiintoisia. 

Kilpailun inspiroivana teemana toimii Otaniemen kampus, Aalto-yliopiston yhteisö sekä sen rikas opiskelijakulttuuri. Taidekilpailu on avoinna 9.2. - 31.3. Kilpailuun osallistutaan jättämällä kilpailulomakkeelle teosehdotus tarvittavine lisätietoineen. Mikäli ehdotus valitaan, taiteilijalla on touko–elokuun ajan mahdollisuus toimittaa tai toteuttaa taideteos uudisrakennukseen. Rakennus avautuu asukkaille syyskuun alussa. 

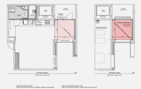
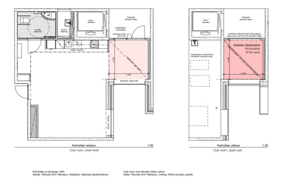
Taideteosten sijoituspaikat rakennuksessa

Teoksia varten rakennuksesta on varattu useita sijainteja, joihin voi tutustua kilpailukutsun aineistossa. Aulatilojen lisäksi myös asukkaiden yhteinen kerhohuone tarjoaa upeita mahdollisuuksia taideteoksille. AYY järjestää kohteen esittelytilaisuuden kilpailuun osallistumisesta kiinnostuneille. Tilaisuudessa käydään läpi mahdollisia teosten sijoituspaikkoja sekä kohteessa huomioitavia reunaehtoja. Esittelytilaisuus järjestetään keskiviikkona 4.3. klo 13.00-14.00, ja siihen tulee ilmoittautua etukäteen alla olevalla lomakkeella:

Ilmoittautuminen kohdevierailulle-lomake
 

Taidekilpailun teosten tekniikka on vapaa, mutta toteutuksessa tulee huomioida tilojen käyttötarkoitus ja olosuhteet. Teos voi olla esimerkiksi maalaus, grafiikka, muraali, katosta ripustettava mobile tai veistos. Toiveena on, että kilpailuehdotuksessa teos on hahmoteltu valmiiksi sille suunniteltuun tilaan. 

AYY:n toimistolta löytyy Ensimmäisen Otakaari‑hankkeen, Otakaari 15:n tontilta talteen otettua puumateriaalia. Puu on sahattu noin metrin mittaisiksi osuuksiksi, ja niitä saa vapaasti käyttää teos- ja projektimateriaalina. 

Kuka voi osallistua? 

Aallon opiskelijat.

Miten osallistua?

Jätä kilpailuehdotuksesi oheisen lomakkeen kautta. Lisää tarkat tiedot teoksesta, sen materiaaleista sekä useampia kuvia tai luonnoksia. Anna myös arvio teoksen hinnasta (materiaalien ja oman työn kustannukset). Ylioppilaskunta vastaa teoksen ripustus- ja kiinnityskustannuksista. 

Otakaari 15 -taidekilpailun osallistumislomake 2026

Budjetti

Taideteoksia ostetaan mahdollisuuksien mukaan useampia, taidehankintabudjetin ollessa noin 5000–7000€. Ilmoitathan työsi yhteydessä, millä summalla olet valmis myymään kilpailuteoksesi sijoitettavaksi Otakaari 15:een.

Jury ja valintaprosessi

Osallistujat voivat ehdottaa maksimissaan kahta työtä kilpailuun. Hankittavat teokset valitsee tuomaristo, jossa on mukana asiantuntija taidealalta sekä edustajat AYY:lta sekä ylioppilaskunnan taidetoiminnan asiantuntija TOKYOlta.

Lisätietoja:

Kilpailun käytänteet:                                                         

Anna Merikari
Museojohtaja, yhteisöpäällikkö
anna.merikari@ayy.fi 

Teosten asennusta ja kiinnitystä koskevat kysymykset:

Petri Kuusisto
Projektipäällikkö
petri.kuusisto@ayy.fi 

Taustaa Otakaaren alueesta

Otakaaren metsäselänne asumiskäyttöön  

2010-luvulta eteenpäin Otakaaren alueelle laaditut asemakaavat pyrkivät sovittamaan yhteen rakentamisen, kulttuuriympäristön suojelun ja luonnon monimuotoisuuden – erityisesti liito-oravan elinympäristön turvaamisen. Uudisrakentaminen muuttaa kampusviheriön reunaa, mutta vihersormet ja selänteen metsärakenne pyritään säilyttämään osana Otaniemen ekologista ja kaupunkikuvallista kokonaisuutta.  

Alueen toteutuksen vaiheistus alkoi Otakaari 15:stä ja jatkuu 2030-luvulle saakka, osana laajempaa muutosta, jossa perinteisestä korkeakoulukampuksesta kasvaa monipuolinen ja tiiviimpi tiede- ja asumiskeskittymä. Otakaari 15 -opiskelija-asuntokohteen rakentaminen alkoi vuoden 2025 alussa, ja kohde valmistuu elokuussa 2026.  

havainnekuva
Otakaari 15 havainnekuva pihanäkymästä
  • Päivitetty:
  • Julkaistu:
Jaa
URL kopioitu

Read more news

Kuvassa pinottuna kahdeksan edellisen suunnittelijan Design Notebookia
Ajankohtaista, Tiedote Julkaistu:

Design Notebookin suunnittelukilpailu on auki

Oletko sinä seuraavan Design Notebookin suunnittelija? TOKYOn ja AYY:n muistikirja ilmestyy seuraavan kerran syksyllä 2026 ja sen suunnittelija valitaan perinteiseen tapaan opiskelijoidemme joukosta. Muistikirja on ollut suosittu, ja toivomme, että siitä on jälleen iloa ja hyötyä mahdollisimman monelle jäsenellemme. Suunnittelukilpailu alkaa 23.2.2026 ja päättyy 16.3.2026 klo 15.00.
kuvassa Joona Lipponen kampuksella, ilme on totinen ja katse kameraan
Ajankohtaista, Blogi, Tiedote Julkaistu:

Mikä on Trinet ja mitä AYY:n nettiyhteydelle tapahtuu?

Aalto-yliopiston ylioppilaskunnan (AYY) asukkaiden internetpalveluntarjoaja on vaihtumassa. Olemme kuulleet, että muutos on herättänyt huolta opiskelijayhteisössä. Tässä jutussa AYY:n hallituksen puheenjohtaja Joona Lipponen vastaa jäseniämme askarruttaviin kysymyksiin.
opiskelijoita ihailemassa uutta lippua
Ajankohtaista, Blogi Julkaistu:

Uusi polyteekkarien lippu vihdoin käyttöön Otaniemessä

Otaniemen teekkarien 15 vuoden odotus palkittiin marraskuun alkupuolella, kun teekkariyhteisö otti käyttöön uuden polyteekkarien lipun juhlallisin menoin 153. Teekkariperinnejuhlassa. Edellinen Otaniemen teekkareita yhdistänyt lippu oli Teknillisen korkeakoulun ylioppilaskunnan lippu, joka palveli yhteisöä vuosina 1909–2009 ja jäi ansaitulle eläkkeelle Aalto-yliopiston ylioppilaskunnan syntyessä. Näin uusi lippu syntyi.
Havainnekuva Otakaari 15
Ajankohtaista, Tiedote Julkaistu:

Otakaari 15 ensihaku alkaa maaliskuussa

Ensihaku Otakaari 15:n uusiin, rakenteilla oleviin opiskelija-asuntoihin alkaa 16. maaliskuuta. Kohteeseen valmistuu 153 modernia asuntoa, jotka on suunniteltu vastaamaan nykyopiskelijoiden tarpeita aivan Aalto-yliopiston kampuksen ytimessä.