Otarannan kattosauna

Otarannan kattosauna sijaitsee Otaranta 8 E:n ylimmässä kerroksessa. Parvekkeilta avautuvat näkymät Otarannan venekerhon yli Laajalahdelle.
Otarannan kattosaunan kabinetti

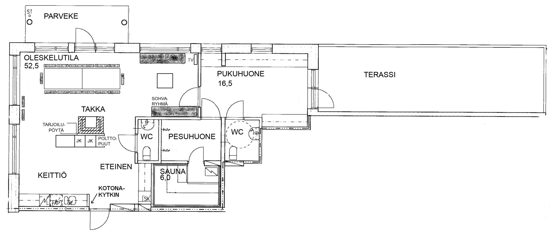
Otarannan kattosauna soveltuu saunailtojen ja kokousten lisäksi vaikkapa pienten sitsien pitämiseen. Tilassa on saunan lisäksi oleskelu- ja kokoustilaa sekä kaksi suurta parveketta. Sauna on ollut erittäin suosittu yrityssaunailtojen pitopaikka.

Sauna laitetaan tilassa itse kytkimestä päälle, kytkin sijaitsee tilan sisäänkäynnin vieressä olevalla seinällä. Kattosauna sijaitsee asuintalon ylimmässä kerroksessa, joten sieltä on ehdottomasti poistuttava käyttöajan loppuun mennessä.

Osoite: Otaranta 8 E
Sauna: Tilaa 10 hengelle. Sauna on mahdollista laittaa lämpiämään klo 12 alkaen. 
Oleskelutila: Suuri pöytä ja tuolit 13 hengelle, jakkaroita, erillinen tarjoilupöytä, sohvaryhmä ja sohvapöytä. Tilaan mahtuu yhteensä noin 25 henkeä.
Keittiö: Keraaminen liesi, uuni, mikro, kaksi suurta jääkaappia, astianpesukone ja kahvinkeitin.
Astiat: Astiasto 20 hengelle.
Muuta: Takka, televisio, videotykki ja valkokangas sekä äänentoisto.

Tilaan pääsee kulkukoodilla, joka löytyy Tilasta varauksen tiedoista. Kulkukoodi aktivoituu 15 minuuttia ennen varauksen alkamista. Kulkukoodi käy sisäpihan ulko-oveen sekä tilan oveen.

Esteettömyys:  Esteetön sisäänkäynti sijaitsee talon takana hiekkatien varrella. Tilaan saavutaan hissillä. Pukuhuone- ja suihkutiloihin on esteetön pääsy ja niissä on tilaa liikkua apuvälineen kanssa. Saunaan ei välttämättä mahdu esimerkiksi pyörätuolin kanssa. Tilassa on kaksi wc:tä, joista toinen on tilavampi ja voi toimia esteettömänä. Kattosaunan terassille pääsy ei ole esteetöntä, sillä terassille kuljetaan pukuhuonetiloista kahden porrasaskelman kautta. Parvekkeelle on esteetön pääsy. Rakennuksen pihapiiri on tasainen ja pysäköintipaikkoja on runsaasti, mutta erillisiä esteettömiä pysäköintipaikkoja ei ole.

Kuvia

    Otarannan kattosaunan kabinetti2
    Otarannan kattosaunan kabinetti3
    Otarannan kattosaunan kabinetti5
    Otarannan kattosaunan keittiö
    Otarannan kattosaunan parveke
    Otarannan kattosaunan pukuhuone
    Otarannan kattosauna pukuhuone
    Otarannan kattosaunan terassi
    Otarannan kattosaunan terassi2
    AvainSauna_pohjakuva

    Avaa kuva uudessa välilehdessä nähdäksesi pohjakuvan kokonaisuudessaan

    Pukuhuone
    Pikkuparvekenäkymä
    Tilojen hinnasto ja käyttöajat
    • Päivitetty:
    • Julkaistu:
    Jaa
    URL kopioitu