1.3. vapautuva kaksio Helsingin Roihuvuoressa – avoin haku kaikille opiskelijoille
Nyt vapautumassa on kaksio Helsingin Roihuvuoresta!
AYY:llä on toisinaan tarjolla asuntoja, joihin voi hakea asumaan kuka tahansa opiskelija. AYY vuokraa kuitenkin asuntoja ensisijaisesti suosien ylioppilaskunnan jäseniä. Jäsenellä ei tarvitse olla voimassa olevaa asumisoikeusaikaa. Asumisoikeus näihin asuntoihin on kolme (3) vuotta sopimuksen alkamispäivästä. Huomaathan, että mikäli asut jo AYY:n asunnossa, sinua koskee kuukauden irtisanomisaika.
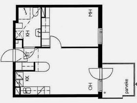
Asunnon osoite: Kääpiöidenpolku 4 B 56
Maaliskuun alusta vapautuva kaksio on kooltaan 41 m2 ja siinä on olohuone, makuuhuone, keittiö, kylpyhuone ja parveke. Asunto sijaitsee talon 4. kerroksessa ja talossa on hissi. Vuokra on 549,40 €/kk. Tätä asuntoa voi hakea yhdessä kaksi hakijaa, jotka tekevät AYY:n kanssa yhden yhteisen vuokrasopimuksen TAI asunnon voi vuokrata yksi päävuokralainen, joka vastaa yksin AYY:lle vuokranmaksusta ja hoitaa alivuokraussopimuksen itse toisen asukkaan kanssa.
Lisätietoa AYY:n asunnoista ja kiinteistöistä löydät Domosta. Hae asuntoa tällä lomakkeella.
Read more news
AYY:n jäsen – vastaa jäsenkyselyyn!
Haluamme kuulla, mikä ylioppilaskunnassa toimii, missä on kehitettävää ja miten voisimme palvella jäseniämme parhaalla mahdollisella tavalla. Auta meitä kehittymään ja toimimaan jatkossakin kohti maailman parasta opiskelijan elämää! Vastaajien kesken arvotaan iPad Air ja lippupaketteja Alvarin kesäjuhla -festivaalille. AYY:n jäsenkysely on auki 8.5. asti.
Hae SYLin toimikuntiin!
Aalto-yliopiston ylioppilaskunnan jäsenillä on nyt mahdollisuus hakea ehdokkaaksi Suomen ylioppilaskuntien liitto SYLin kehitysyhteistyön neuvottelukuntaan (KENKKU) sekä ilmastoverkostoon.
Nuoret aikuiset Suomen yksinäisimpiä – opiskelijat käynnistävät Wapun keräyksen
Aalto-yliopiston ylioppilaskunnan (AYY) Fuksitoimikunta ja Kansainvälisyystoimikunta keräävät varoja nuorten yksinäisyyden vähentämiseksi Wapun alla. Keräyksen tuotot ohjataan HelsinkiMission työhön nuorten yksinäisyyttä vastaan.
Uusia opiskelija-asuntoja Otaniemeen. Hae nyt!
Haku Otakaari 15:n uusin opiskelija-asuntoihin on nyt käynnissä!Kohteeseen valmistuu 153 modernia asuntoa, jotka on suunniteltu vastaamaan nykyopiskelijoiden tarpeita aivan Aalto-yliopiston kampuksen ytimessä.
Lue lisää www.ayyasunnot.fi